热风机生产厂家:3499拉斯维加斯机械设备公司专业生产热风机工业热风机高压热风机循环热风机铸造热风机等工业热风机产品。

关闭
网站首页
产品展示
关于我们
新闻资讯
客户案例
联系方式

耐高温风机E

当今社会,品质决定公司的发展基础,技术决定公司的发展前景。在热风设备的生产中,生产作业的品质取决于优良的质材,热风机的电热及电子技术的优劣体现在设计技术的差异。如何在小误差内确保正确的尺寸,如何在日新月异的发展潮流中始终走在热风行业的尖端,成为推动3499拉斯维加斯工业不懈发展的动力。
  • 热线电话

    13040700003

  • 手机扫码访问

耐高温风机用途

①针对干燥行业、锅炉行业、清洗行业、涂装行业、食品烘干行业配套而研发的耐高温离心风机。

②输送的气体为空气或其他不自燃、不自爆、无缠绕性、对人体无害、对钢铁材料无腐蚀的气体。也可为各行业输送无腐蚀性、不自燃、不含粘性物质的热气、蒸汽、烟气。其它性能相近的也可以选用,但输送介质的温度不得超过它的额定温度范围。

③气体内不能有粘性物质,所含的尘土及硬质颗粒不大于150mg/m³,如果含尘量大,在风机前必须加装准备就绪不低于85%的除尘装置,降低进入风机的烟气含尘量,有利于提高风机寿命。

耐高温风机安装形式

①此类风机有两种形式。从电机一侧正视,叶轮顺时针旋转的称为右旋风机,以“右”表示;叶轮逆时针旋转的称为左旋风机,以“左”表示。

②风机的出口位置,以机壳的出风口角度表示。风机出厂时均做成一种可调型式,使用单位根据要求在安装成所需要的位置。出风口位置调整范围是0°-255°,间隔是45°。传动方式均为“A”式直联传动。

耐高温风机特点

①风机主要由叶轮、机壳、进风口、电机、连接器、散热风叶等部分组成。

②进风口采用收敛流线型减涡形式,气流损失较小,风机的工作效率高。

③TSN-E型风机叶轮由12个前弯型叶片、曲线形前盘和平板型后盘组成。材料用强度高、耐用性好的优质钢板制造,并经严格的动静平衡校正。空气性能良好,效率高,运转平稳。

④风机机壳与电机以金属铸件安装连接,电机轴头上安装散热枫叶,金属铸件的外壁开设进、出水管接头,对金属铸件与轴头进行降温,确保电机在高温下正常运行。

⑤其电机机采用特殊高温电机,风机流体部分采用耐温材料,降温结构性可靠。相比其它锅炉引风机,TSN-E型结构简单,维护方便,性价比高等优点。

⑥风冷式使用温度≤180℃。水冷式使用温度≤230℃。

类  型机  号功  率转  速流 量全  压

(TSN-)(Kw)(r/min)(m³/h)(Pa)

E11.52900552-11421908-1732

E22.22900824-12642986-2997

E3329001410-17042922-2710

E4429001174-20623835-3705

E55.529002281-25043580-3426

E67.529002254-34884698-4232
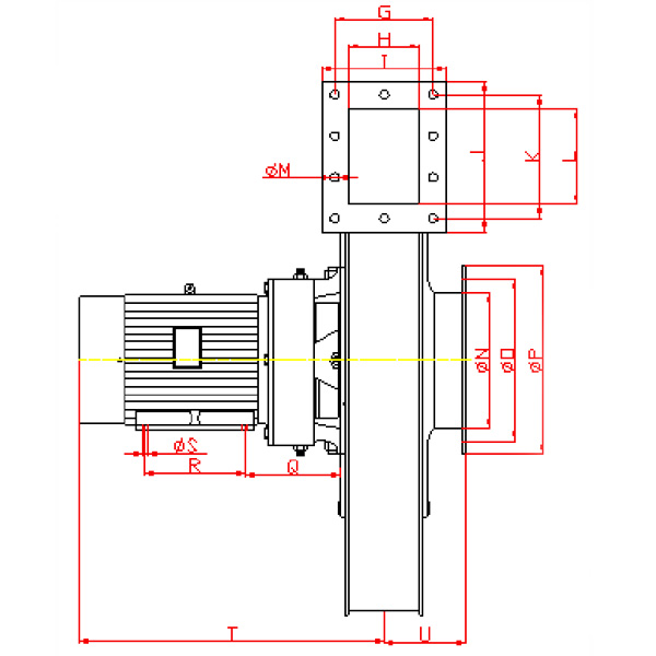
耐高温风机系列外型尺寸图
型 号ABCDEFGHIJKL
E15452382305859014011681145175144111
E26052703006549014012892155190162127
E360527030065410016012892155190162127
E4675308310735112190141104170210180143
E5675308310735132216141104170210180143
E6745338370810132216150115180225195159
型 号MNOPQRSTU


E11015818821815610010406.591


E21018021024015612510437.28104


E31018021024016314012472.3104


E41020323326317014012498117


E51020323326318914012553117


E61022525528518914012559130


TSN系列风机使用效果图
TSN-(A、B)型
TSN-(C、D)型
TSN-E型



售后服务承诺书

  • 品质包期为一年,终生维修。

    在质保期内,我方会在接到用户通知后4-6小时内作出报修响应,并在某24-72小时内免费提供维修服务,调整或更换有缺陷零部件或设备。在保修期间,根据用户需要,如需要到现场进行维修的只收取工本费。为用户提供分析系统的升级服务。

  • 热线电话服务

    当客户在设备出现问题或故障后需要寻求帮助,首先可以通过热线电话或网络请求帮助和指导,客户服务部在确认客户的服务请求后,将安排技术人员在规定的时间内通过电话帮助客户进行故障定位,并提交解决方案,终指导客户解决问题或排除设备故障。

  • 现场服务

    客户在使用设备时遇到疑难或者设备出现不正常状态,通过电话或传真向公司寻求技术支持和帮助,客户服务部在确认客户的请求后,如果不能通过热线电话服务解决设备的技术故障,在经过双方商议后确定需要进行现场故障排除的情况下,客户服务部指派工程师在承诺的时间内赴现场分析故障原因,制定故障排除方案,并终排除故障。

  • 客户培训

    工程师在完成现场服务后,应针对本次故障出现的原因和故障排除方法对客户进行现场培训,同事对客户再使用过程中遇到的问题进行技术交流,以便客户以后能够独立排除类似的设备故障。

    节假日服务保障

    在节假日(国家法定节假日)期间,除继续开通服务热线外,安排服务工程师值班,使客户在设备使用过程中出现问题时能够及时得到服务支持,为客户提供周到体贴的服务。

TSN标准/循环型热风机客户使用现场图
相关产品
相关文章
最近浏览
产品展示
关于我们
新闻资讯
返回顶部
联系电话:13040700003
我要询价
3499拉斯维加斯
网站地图