热线电话
13040700003
手机扫码访问
①针对干燥行业、锅炉行业、清洗行业、涂装行业、食品烘干行业配套而研发的耐高温离心风机。
②输送的气体为空气或其他不自燃、不自爆、无缠绕性、对人体无害、对钢铁材料无腐蚀的气体。也可为各行业输送无腐蚀性、不自燃、不含粘性物质的热气、蒸汽、烟气。其它性能相近的也可以选用,但输送介质的温度不得超过它的额定温度范围。
③气体内不能有粘性物质,所含的尘土及硬质颗粒不大于150mg/m³,如果含尘量大,在风机前必须加装准备就绪不低于85%的除尘装置,降低进入风机的烟气含尘量,有利于提高风机寿命。
①此类风机有两种形式。从电机一侧正视,叶轮顺时针旋转的称为右旋风机,以“右”表示;叶轮逆时针旋转的称为左旋风机,以“左”表示。
②风机的出口位置,以机壳的出风口角度表示。风机出厂时均做成一种可调型式,使用单位根据要求在安装成所需要的位置。出风口位置调整范围是0°-255°,间隔是45°。传动方式均为“A”式直联传动。
①风机主要由叶轮、机壳、进风口、电机、连接器、散热风叶等部分组成。
②进风口采用收敛流线型减涡形式,气流损失较小,风机的工作效率高。
③TSN-A型叶轮采用多翼式单进离心叶轮,用优质的镀锌板或者冷轧钢板制成,叶片依据空气动力原理设计。TSN-C型叶轮由10个后倾机翼型叶片、曲线形前盘和平板后盘组成。材料用强度高、耐用性好的优质钢板制造,并经严格的动静平衡校正。空气性能良好,效率高,运转平稳。
④风机机壳与电机以金属铸件安装连接,电机轴头上安装散热枫叶,金属铸件的外壁开设进、出水管接头,对金属铸件与轴头进行降温,确保电机在高温下正常运行。
⑤其他机采用特殊高温电机,风机流体部分采用耐温材料,降温结构性可靠。相比其它锅炉引风机,TSN-C型结构简单,维护方便,性价比高等优点。
| 类 型 | 机 号 | 功 率 | 转 速 | 流 量 | 全 压 |
| 高速型 | (TSN-) | (Kw) | (r/min) | (m³/h) | (Pa) |
| C1 | 1.1 | 2900 | 1131-2356 | 828-504 | |
| C2 | 1.5 | 2900 | 1688-3517 | 1082-659 | |
| C3 | 3 | 2900 | 2664-5268 | 1315-823 | |
| C4 | 4 | 2900 | 4012-7419 | 1678-1100 | |
| C5 | 5.5 | 2900 | 5712-10563 | 2123-1392 | |
| 低速型 | D1 | 1.1 | 2900 | 1332-2634 | 329-206 |
| D2 | 1.1 | 1450 | 2006-3710 | 420-275 | |
| D3 | 1.1 | 1450 | 2856-5282 | 531-348 | |
| D4 | 2.2 | 1450 | 3864-7727 | 664-421 | |
| D5 | 3 | 1450 | 5429-10857 | 833-528 | |
| D6 | 4 | 1450 | 6677-13353 | 1139-724 | |
| D7 | 5.5 | 1450 | 7729-15458 | 1265-80 | |
| D8 | 7.5 | 1450 | 12676-20513 | 1572-1168 |


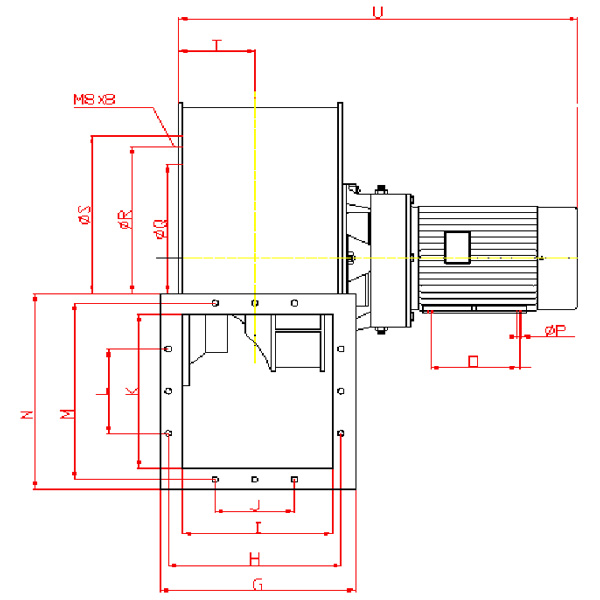
| 型号 | A | B | C | D | E | F | G | H | I | J | K | L |
| C1 | 561 | 187 | 196 | 125 | 80 | 455 | 256 | 230 | 196 | 156 | 184 | 224 |
| C2 | 637 | 213 | 224 | 140 | 90 | 519 | 284 | 258 | 224 | 184 | 216 | 256 |
| C3 | 714 | 239.5 | 249 | 160 | 100 | 584 | 312 | 286 | 252 | 192 | 228 | 288 |
| C4 | 789 | 265 | 280 | 190 | 112 | 647 | 340 | 314 | 280 | 220 | 261 | 320 |
| C5 | 885 | 298 | 315 | 216 | 132 | 728 | 375 | 349 | 315 | 235 | 300 | 360 |
| D2 | 789 | 265 | 280 | 140 | 90 | 647 | 340 | 314 | 280 | 220 | 261 | 320 |
| D3 | 885 | 298 | 315 | 140 | 90 | 728 | 375 | 349 | 315 | 235 | 300 | 360 |
| D4 | 981 | 331 | 350 | 160 | 100 | 809 | 410 | 384 | 350 | 290 | 339 | 400 |
| D5 | 1111 | 373 | 387 | 160 | 100 | 908 | 475 | 440 | 400 | / | / | 460 |
| D6 | 1183 | 396 | 420 | 190 | 112 | 969 | 500 | 460 | 420 | / | / | 480 |
| D7 | 1247 | 419 | 441 | 216 | 132 | 1028 | 521 | 480 | 441 | / | / | 504 |
| D8 | 1371 | 462 | 489 | 216 | 137 | 1129 | 570 | 534 | 490 | 430 | 460 | 560 |
| 型 号 | M | N | O | P | Q | R | S | T | U | |||
| C1 | 258 | 284 | 100 | 10 | 280 | 306 | 322 | 101 | 547 | |||
| C2 | 291 | 316 | 100 | 10 | 320 | 350 | 364 | 115 | 590 | |||
| C3 | 322 | 348 | 140 | 12 | 360 | 394 | 416 | 129 | 678 | |||
| C4 | 354 | 380 | 140 | 12 | 400 | 436 | 460 | 143 | 726 | |||
| C5 | 394 | 420 | 140 | 12 | 450 | 490 | 510 | 160.5 | 681 | |||
| D2 | 354 | 380 | 100 | 10 | 400 | 430 | 460 | 143 | 646 | |||
| D3 | 394 | 420 | 100 | 10 | 450 | 489 | 510 | 160.5 | 681 | |||
| D4 | 434 | 460 | 140 | 12 | 500 | 550 | 570 | 178 | 776 | |||
| D5 | 500 | 535 | 140 | 12 | 560 | 585 | 610 | 201 | 820 | |||
| D6 | 520 | 560 | 140 | 12 | 600 | 640 | 676 | 210 | 860 | |||
| D7 | 546 | 584 | 140 | 12 | 630 | 680 | 710 | 224 | 937.3 | |||
| D8 | 604 | 640 | 178 | 12 | 700 | 750 | 780 | 247 | 1001 |

品质包期为一年,终生维修。
在质保期内,我方会在接到用户通知后4-6小时内作出报修响应,并在某24-72小时内免费提供维修服务,调整或更换有缺陷零部件或设备。在保修期间,根据用户需要,如需要到现场进行维修的只收取工本费。为用户提供分析系统的升级服务。
当客户在设备出现问题或故障后需要寻求帮助,首先可以通过热线电话或网络请求帮助和指导,客户服务部在确认客户的服务请求后,将安排技术人员在规定的时间内通过电话帮助客户进行故障定位,并提交解决方案,终指导客户解决问题或排除设备故障。
客户在使用设备时遇到疑难或者设备出现不正常状态,通过电话或传真向公司寻求技术支持和帮助,客户服务部在确认客户的请求后,如果不能通过热线电话服务解决设备的技术故障,在经过双方商议后确定需要进行现场故障排除的情况下,客户服务部指派工程师在承诺的时间内赴现场分析故障原因,制定故障排除方案,并终排除故障。
工程师在完成现场服务后,应针对本次故障出现的原因和故障排除方法对客户进行现场培训,同事对客户再使用过程中遇到的问题进行技术交流,以便客户以后能够独立排除类似的设备故障。
在节假日(国家法定节假日)期间,除继续开通服务热线外,安排服务工程师值班,使客户在设备使用过程中出现问题时能够及时得到服务支持,为客户提供周到体贴的服务。

浙江省金华市金东区孝顺镇低田工业区三伍厂内